Производительность Q
в рабочей точке, м3/час:
Q 10 м³/ч
Q 25 м³/ч
Q 40 м³/ч
Q 55 м³/ч
Q 70 м³/ч
Q 85 м³/ч
Q 100 м³/ч
Q 115 м³/ч
Q 130 м³/ч
Q 145 м³/ч
Q 160 м³/ч
Q 220 м³/ч
Q 300 м³/ч
Q 400 м³/ч
Показать все
Напор в
рабочей точке, м:
Показать все
ГРИНЛОС Станция второго подъема в БМ здании
Q в рабочей точке, м³/час:
Q 10 м³/ч
Q 25 м³/ч
Q 40 м³/ч
Q 55 м³/ч
Q 70 м³/ч
Q 85 м³/ч
Q 100 м³/ч
Q 115 м³/ч
Q 130 м³/ч
Q 145 м³/ч
Q 160 м³/ч
Q 220 м³/ч
Q 300 м³/ч
Q 400 м³/ч
Показать все
Напор в рабочей точке, м:
Количество насосов всего:
Наземная установка для водоснабжения ГРИНЛОС 10 м3/ч 3x2,5 м

Цена: от 2 691 170 руб.

Технические характеристики

Q, расход в рабочей точке:
10 м3

Напор в раб.точке:
90 м

Насосов всего:
3 шт

Рабочих насосов:
2 шт

Размер Д*Ш*В:
3,0*2,5*2,7 м

Рабочая темп.:
От +1 до +70 °C

Вес:
2266 кг

Частотное регулирование:
есть

NPSH, подпор в раб.точке, м:
2,76 м

Установка:
Наземная

Рабочие параметры и гидравлические показатели при 200C
+Q, Подача м3/час
Расход (подача в рабочей точке), м3/час 10,44
Подача при макс. КПД (Qном.), м3/час 12
Мин. подача (Qмин.), м3/час 5
Макс. подача (Qмакс.), м3/час 17
+Напор, м
Напор в рабочей точке, м 98,16
Напор, м (при Q=0) 123
Напор, м (при Q=Qmin(5 м3/час)) 117
Напор, м (при Q=Qмакс(17 м3/час)) 56
+Насосы
Марка Boosta
Производитель насоса Группа ГМС
Направляющий аппарат Нержавеющая сталь
Вал Нержавеющая сталь
Рабочее колесо Нержавеющая сталь
Тип рабочего колеса насоса Радиальное колесо
Корпус Чугун
Подвижное кольцо уплотнения Карбид вольфрама
Неподвижно кольцо уплотнения Графит
Конструкция двигателя Вертикально
Ном. напряжение, В 380
Частота вращения, 1/min 2900
Вид защиты IP 54
Рабочее давление, бар до16
Диаметр рабочего колеса, мм 50
+Рабочая среда
Жидкость Вода
Вязкость, сСт До 50
Максимальное содержание твердых частиц по массе, мг/л 20
Максимальный размер твердых частиц, мм Не более 0,2
Водородный показатель, pH от 6 до 9
+Энергетические характеристики
КПД в рабочей точке, % 78,1
Максимальный КПД 78,7
NPSH в рабочей точке, m 2,76
Макс. мощность на валу одного насоса, kW 4,0
Номинальная мощность одного насоса, kW 3,00
Мощность на валу одного насоса, kW 3,56
Сила тока, A 6,3

Преимущества блочно-модульных
насосных станций второго подъема

Высокая производительность

Станции обеспечивают подачу воды от 10 до 400 м³/час с напором до 140 метров, закрывая потребности как малых поселков, так и крупных промышленных объектов.

Интеллектуальное управление

Система из 2–4 вертикальных многоступенчатых насосов с частотным регулированием гарантирует плавную работу, экономию электроэнергии и отсутствие гидроударов.

Полная заводская готовность

Поставляется в виде готового блочно-модульного здания в сборе. Требуется только установка на фундамент и подключение к сетям, что сокращает сроки монтажа в разы.

Всесезонная эксплуатация

Модуль на мощном основании оснащен эффективным утеплением, системой освещения и конвекторами для поддержания оптимального микроклимата круглый год.

Удобство обслуживания

Внутри предусмотрена ручная кран-балка (таль) для работы с оборудованием, а также дренажный приямок с насосом для быстрого удаления излишков воды.

Индивидуальное проектирование

Мы готовы выполнить станцию строго по вашему техническому заданию, адаптируя компоновку, материалы и автоматику под конкретные условия эксплуатации.

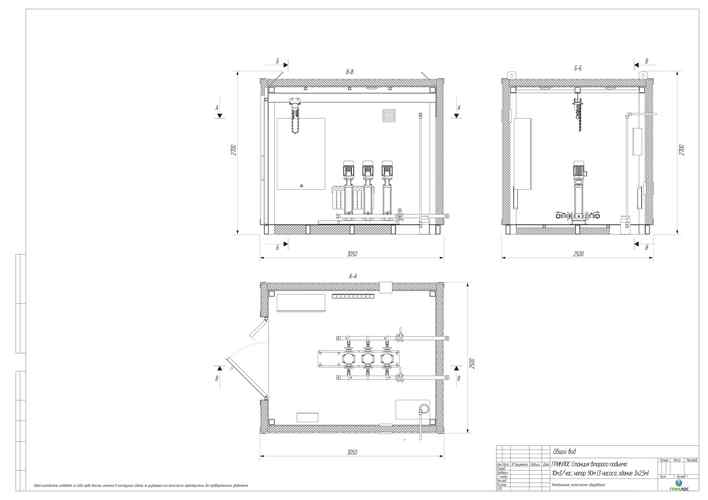
Габаритный чертеж

Эскиз модульной станции второго подъема ГРИНЛОС 10 м3/ч 3x2,5 м

ГРИНЛОС Станция второго подъема 10 м3/ч, напор 90 м (3 насоса, здание 3x2,5 м) — станция второго подъема производительностью 10,44 м3 и напором 98,16 м. Оптимальна для автоматического поддержания давления на жилых и промышленных объектах.

Ключевые преимущества модели:

  • Частотное регулирование. Автоматическая подстройка оборотов двигателя под текущий расход.
  • Заводская готовность. Модуль высотой 2.7 м поставляется в полной сборке.
× Особенности крупно

Комплект поставки и оснащение

Комплект поставки блочно-модульной насосной станции
  • Блочно-модульное здание в сборе

    Конструктив: Жесткий каркас, рассчитанный на транспортировку в сборе с установленными насосными агрегатами. Крыша спроектирована под расчетную снеговую нагрузку.

    Транспортировочные узлы: Здание оснащено сертифицированными транспортировочными петлями для безопасной погрузки и монтажа станции на объекте.

    Толщина профиля и высота: Стандартное исполнение — сталь 4-5 мм, высота здания 2,7 м. Усиленное исполнение — тяжелый профиль с толщиной стенки 8-10 мм для повышенной жесткости, высота здания 3,1 м.

    Габариты: 3,0x2,5x2,7 мм. Климатическое исполнение — стандарт.

    Утепление: Тепловой контур (стены, пол, кровля) защищен негорючей минеральной ватой толщиной 100 мм.

    Пол: Усиленное основание, специально рассчитанное на статическую и динамическую нагрузку от веса насосных агрегатов. Финишное покрытие — стальной рифленого лист 6 мм («чечевица»).

  • Грузоподъемное оборудование

    Кран-балка (Усиленное исполнение): Полноценная мостовая система для индустриального обслуживания.

    Ручная таль (Стандартное исполнение): Компактная подвесная система с передвижной кареткой.

    Направляющая: Единый монорельсовый путь из стального двутавра.

  • Насосное оборудование и обвязка

    Агрегаты: Насосы в сборе с двигателями — 3 шт.

    DN присоединительный: R2

    Дополнительные опции: Система может быть доукомплектована гибкими виброкомпенсаторами и виброопорами для гашения шумов и пульсаций (не входят в базовую комплектацию).

    Арматура: Запорно-регулирующая арматура выполнена согласно схеме обвязки.

  • Управление и внутренние сети (Комплект из 2-х шкафов)

    Шкаф №1 (Силовой): Управление насосными агрегатами с системой частотного регулирования.

    Шкаф №2: Управление инженерными системами (дренажный насос, конвекторы отопления, освещение, вентиляция).

    Климат-контроль: Электрические конвекторы с термостатами и принудительная вытяжная вентиляция.

  • Эксплуатационная документация

    Технический паспорт блочно-модульной насосной станции второго подъема.

    Руководство по эксплуатации насосной установки.

    Руководство по эксплуатации насосов Boosta и агрегатов на их основе.

    Инструкция на Пульт управления.

Модификации по напору, м

Характеристики ГРИНЛОС Станция второго подъема 10 м3/ч, напор 10 м (3 насоса, здание 3x2,5 м) ГРИНЛОС Станция второго подъема 10 м3/ч, напор 20 м (3 насоса, здание 3x2,5 м) ГРИНЛОС Станция второго подъема 10 м3/ч, напор 30 м (3 насоса, здание 3x2,5 м) ГРИНЛОС Станция второго подъема 10 м3/ч, напор 40 м (3 насоса, здание 3x2,5 м) ГРИНЛОС Станция второго подъема 10 м3/ч, напор 50 м (3 насоса, здание 3x2,5 м) ГРИНЛОС Станция второго подъема 10 м3/ч, напор 60 м (3 насоса, здание 3x2,5 м) ГРИНЛОС Станция второго подъема 10 м3/ч, напор 70 м (3 насоса, здание 3x2,5 м) ГРИНЛОС Станция второго подъема 10 м3/ч, напор 80 м (3 насоса, здание 3x2,5 м) ГРИНЛОС Станция второго подъема 10 м3/ч, напор 90 м (3 насоса, здание 3x2,5 м) ГРИНЛОС Станция второго подъема 10 м3/ч, напор 100 м (3 насоса, здание 3x2,5 м) ГРИНЛОС Станция второго подъема 10 м3/ч, напор 110 м (3 насоса, здание 3x2,5 м) ГРИНЛОС Станция второго подъема 10 м3/ч, напор 120 м (3 насоса, здание 3x2,5 м) ГРИНЛОС Станция второго подъема 10 м3/ч, напор 130 м (3 насоса, здание 3x2,5 м) ГРИНЛОС Станция второго подъема 10 м3/ч, напор 140 м (3 насоса, здание 3x2,5 м)
Q, производительность в рабочей точке, м3/час 10 10 10 10 10 10 10 10 10 10 10 10 10 10
Напор в рабочей точке, м 10 20 30 40 50 60 70 80 90 100 110 120 130 140
Кол-во насосов всего, шт 3 3 3 3 3 3 3 3 3 3 3 3 3 3
Стоимость от 2 353 352 руб. от 2 395 238 руб. от 2 453 972 руб. от 2 475 188 руб. от 2 520 974 руб. от 2 534 702 руб. от 2 601 158 руб. от 2 614 496 руб. от 2 691 170 руб. от 2 691 170 руб. от 2 704 040 руб. от 2 735 240 руб. от 2 914 484 руб. от 2 914 484 руб.

Модификации по напору

Данные ГРИНЛОС Станция второго подъема 10 м3/ч, напор 10 м (3 насоса, здание 3x2,5 м) ГРИНЛОС Станция второго подъема 10 м3/ч, напор 20 м (3 насоса, здание 3x2,5 м) ГРИНЛОС Станция второго подъема 10 м3/ч, напор 30 м (3 насоса, здание 3x2,5 м) ГРИНЛОС Станция второго подъема 10 м3/ч, напор 40 м (3 насоса, здание 3x2,5 м) ГРИНЛОС Станция второго подъема 10 м3/ч, напор 50 м (3 насоса, здание 3x2,5 м) ГРИНЛОС Станция второго подъема 10 м3/ч, напор 60 м (3 насоса, здание 3x2,5 м) ГРИНЛОС Станция второго подъема 10 м3/ч, напор 70 м (3 насоса, здание 3x2,5 м) ГРИНЛОС Станция второго подъема 10 м3/ч, напор 80 м (3 насоса, здание 3x2,5 м) ГРИНЛОС Станция второго подъема 10 м3/ч, напор 90 м (3 насоса, здание 3x2,5 м) ГРИНЛОС Станция второго подъема 10 м3/ч, напор 100 м (3 насоса, здание 3x2,5 м) ГРИНЛОС Станция второго подъема 10 м3/ч, напор 110 м (3 насоса, здание 3x2,5 м) ГРИНЛОС Станция второго подъема 10 м3/ч, напор 120 м (3 насоса, здание 3x2,5 м) ГРИНЛОС Станция второго подъема 10 м3/ч, напор 130 м (3 насоса, здание 3x2,5 м) ГРИНЛОС Станция второго подъема 10 м3/ч, напор 140 м (3 насоса, здание 3x2,5 м)
Q, м3/час
в раб. точке
10 10 10 10 10 10 10 10 10 10 10 10 10 10
Напор, м
в раб. точке
10 20 30 40 50 60 70 80 90 100 110 120 130 140
Насосов
всего, шт
3 3 3 3 3 3 3 3 3 3 3 3 3 3
Цена, руб 2 353 352 2 395 238 2 453 972 2 475 188 2 520 974 2 534 702 2 601 158 2 614 496 2 691 170 2 691 170 2 704 040 2 735 240 2 914 484 2 914 484

Выбрать количество насосов

В базовой линейке ГРИНЛОС БМ представлены конфигурации на 2, 3 и 4 насоса, что позволяет подобрать оптимальную схему резервирования. Однако возможности нашего производства не ограничены стандартным каталогом: по вашему техническому заданию мы можем спроектировать и изготовить станцию с любым количеством насосных агрегатов и индивидуальными параметрами мощности.
FAQ
+Система 1+1 (Один рабочий и один резервный)
Классическое решение для объектов с относительно стабильным разбором воды, таких как небольшие поселки или ЖК. Главное преимущество здесь — стопроцентное резервирование: в случае выхода из строя основного агрегата, резервный полностью берет нагрузку на себя. Это простая и надежная схема, которая обеспечивает базовые потребности системы водоснабжения без лишних затрат на обслуживание сложной автоматики.
+Система 2+1 (Два рабочих и один резервный)
Оптимальный выбор для объектов с выраженными колебаниями расхода в течение суток. Наличие двух рабочих агрегатов позволяет станции работать в широком диапазоне: ночью задействован один насос, а в часы пик подключается второй. Это значительно экономит электроэнергию и ресурс оборудования. Стоит отметить, что по индивидуальному заказу мы изготавливаем станции с любым количеством насосов под ваши задачи.
+Система 3+1 (Три рабочих и один резервный)
Максимально гибкая конфигурация для крупных промышленных узлов и масштабных жилых микрорайонов. Разделение общей мощности на три рабочих узла позволяет ювелирно подстраиваться под текущий график потребления, сохраняя высокий КПД при любых нагрузках. Такая многонасосность гарантирует не только предельную производительность в пиковые моменты, но и самый плавный режим работы всей гидравлической сети.
+Точное регулирование
Многонасосные схемы идеально справляются с суточными перепадами расхода. Система автоматически подключает дополнительные мощности в часы пик и отключает их ночью, поддерживая стабильный напор.
+Бережный износ
Благодаря интеллектуальному каскадному управлению насосы регулярно чередуются. Это обеспечивает их равномерную наработку и значительно продлевает общий срок службы станции.
+Отсутствие пусковых токов
Применение систем частотного регулирования (ЧРП) позволяет полностью исключить пусковые токи. Насосы запускаются плавно, что снимает нагрузку с электросети и защищает гидравлику от разрушительных гидроударов.

Варианты производительности при напоре 90 м3/час